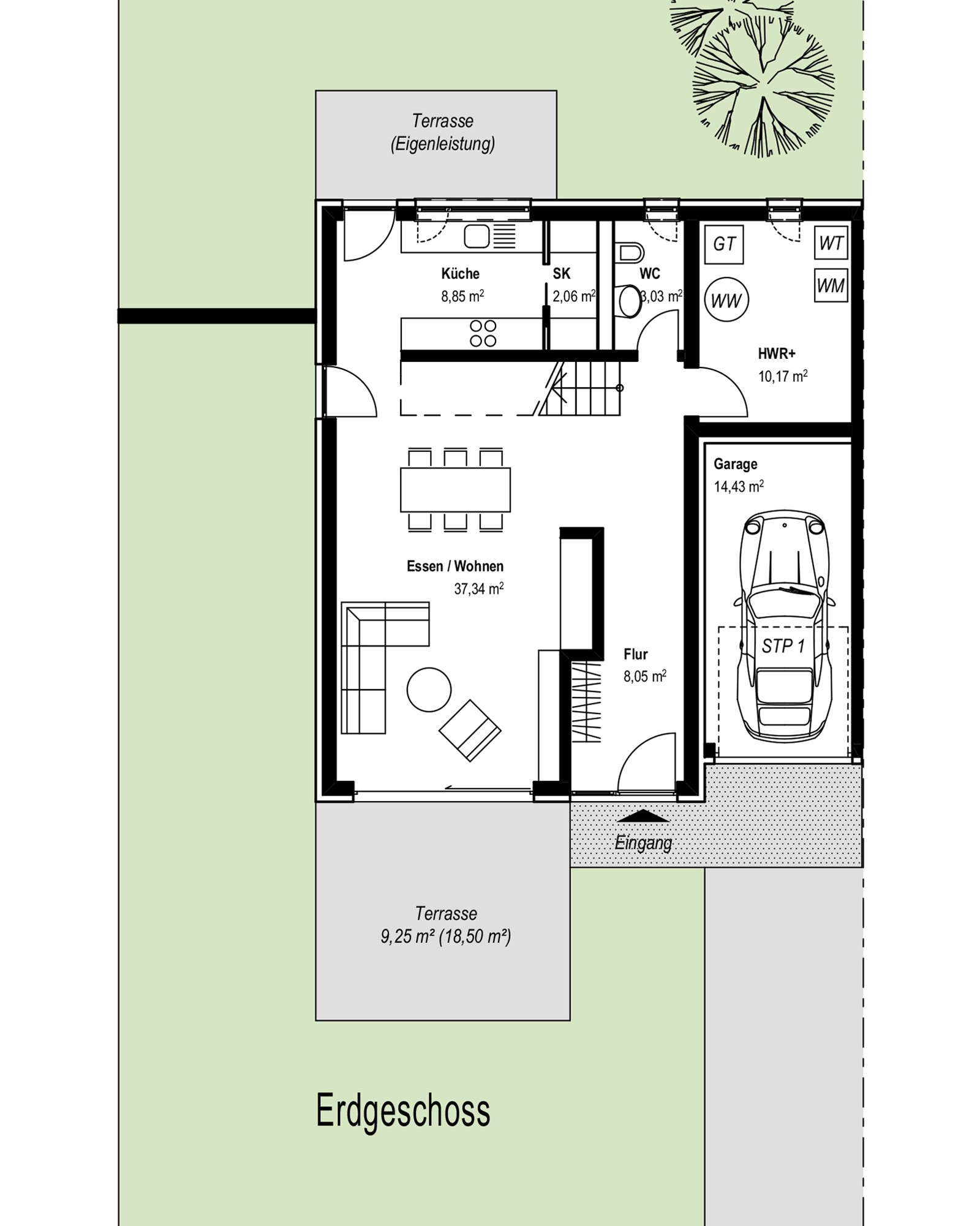
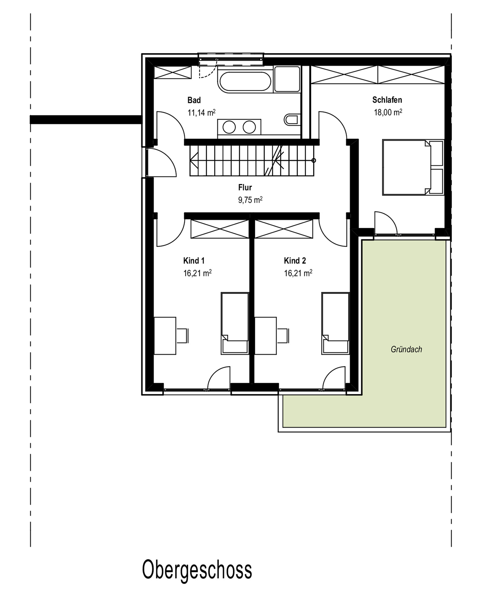
In den modern geschnittenen Stadthäusern finden Sie und Ihre Familie auf 139 m² und optional 181 m² Ihr neues Wunsch-Zuhause. Sie haben die Wahl: Sollen es zwei Vollgeschosse oder optional noch ein Staffelgeschoss mit Dachterrasse mit Blick ins Grüne sein? Jedes Stadthaus verfügt über einen Garten mit Terrasse sowie einen Garage- und Carportstellplatz.
Hier können Sie vom Fahrrad über das Motorrad bis zum Minivan Ihr Transportmittel unterstellen und haben noch genügend Fläche für Ihre Werkzeugbank. Lichtdurchflutete Zimmer, bodentiefe Fenster, hohe Räume und eine moderne Ausstattung – hier sind vom puristischen Designerhaus bis hin zum gemütlichen Eigenheim Ihren Einrichtungswünschen keine Grenzen gesetzt. Die Zimmer sind mit einer Fußbodenheizung ausgestattet und mit hochwertigen Parkettböden belegt. Um den hohen Qualitätsanspruch gerecht zu werden, kommen ausschließlich Markenfabrikate zu Einsatz.




